Werkhalle

Projektinfos
Ort
Böckten
Jahr
2024 -
Auftrag
Direkt Auftrag
Programm
Werkhalle / Büros
Bauherrschaft
Privat
Status
Ausschreibung
Architektur
YLVI, Basel
Team
Clemens Spaar, Henning Weiss, Ladina Thurnherr, Nils Frey
Projektpartner
Haller & Partner (Bauingenieur), Andrist Elektro (Elektroplanung), Grether Schäfer (Heizungsplanung), Ehrsam (Bauphysik) Gruner (Brandschutz)
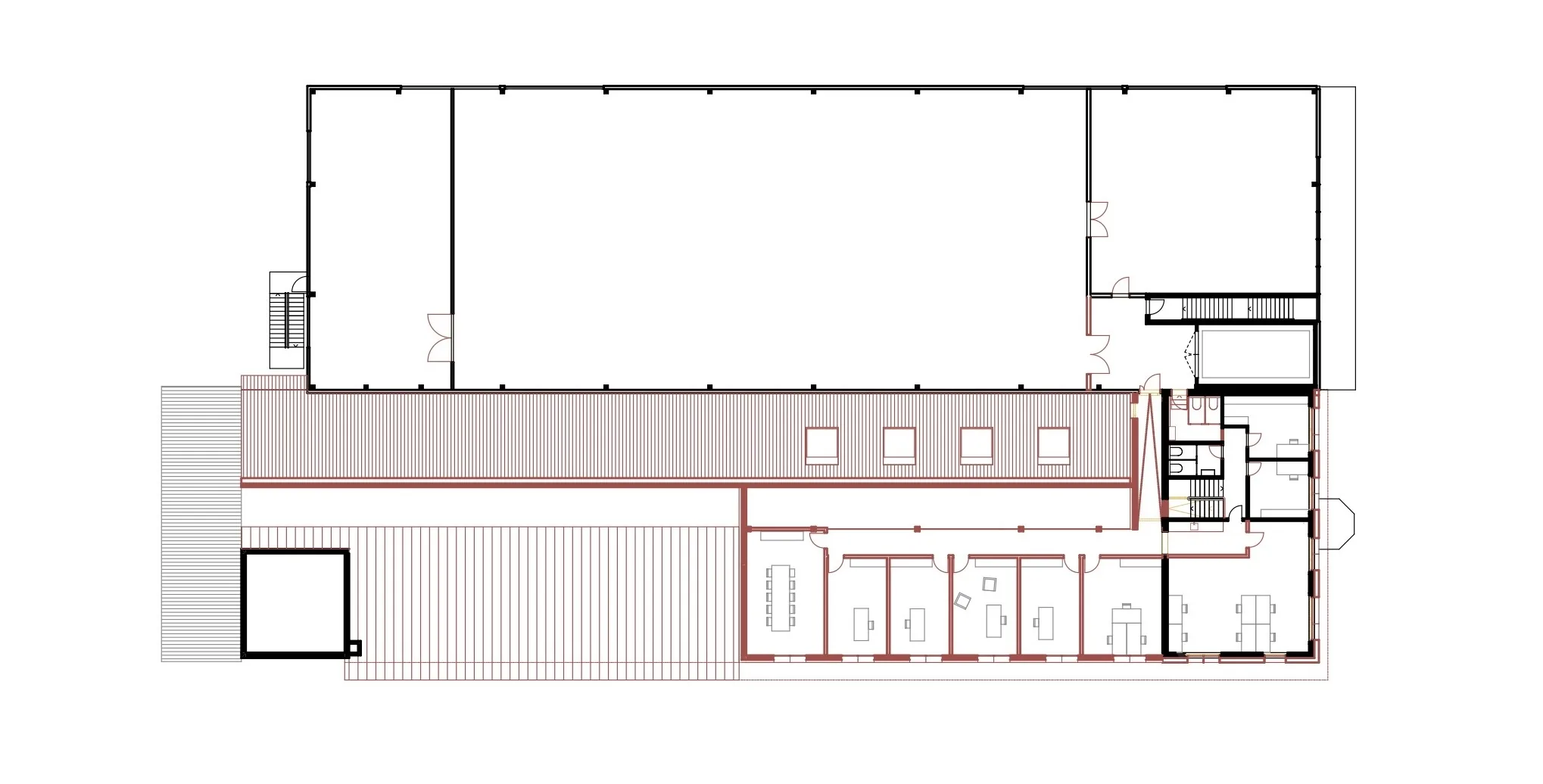
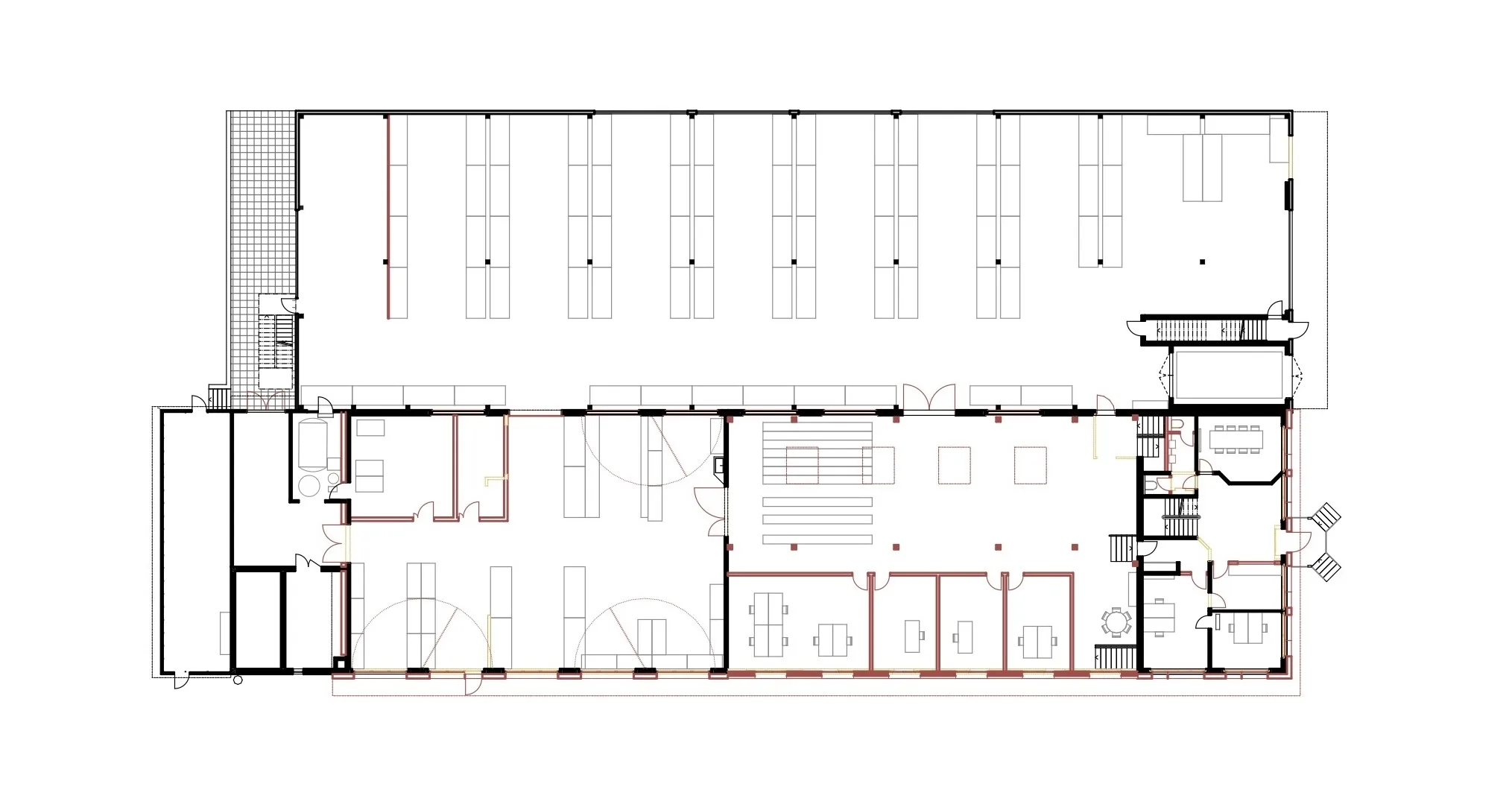
Projektbeschrieb
Das bestehende Hallenensemble in Böckten, bestehend aus einer Werkhalle aus den 1960er-Jahren und einem Ergänzungsbau aus den 1990er-Jahren, wird an neue betriebliche Anforderungen angepasst. Der ursprüngliche Baukörper aus den 60er-Jahren wird energetisch ertüchtigt und baulich so weiterentwickelt, dass der gestiegene Bedarf an Büroflächen gedeckt werden kann. Die Umsetzung erfolgt über eine Erweiterung der eingeschossigen Halle. Die neue Volumetrie verbindet das zweigeschossige Bürogebäude mit der Halle und integriert die beiden Giebeldächer zu einer zusammenhängenden Figur. Der zusätzliche Raum entsteht gezielt dort, wo er betrieblich benötigt wird. Im Bestand werden die kleinstnötigen Eingriffe vorgenommen. Die Erweiterung ergänzt die bestehenden Gebäude sensibel und ermöglicht dem Ensemble eine nachhaltige Verlängerung seines Lebenszyklus.
No ACF gallery field data foundNo ACF gallery field data found
Pläne
Bilder
YLVI GmbH
Architektur Kollektiv
Auf dem Wolf 13
4052 Basel
Kontakt
+41 61 563 30 09
CHE-326.186.65
cross